stehlík architekti novinky o nás realizace projekty ocenění kontakt rodinné domy

Navržený dům reaguje na urbánní souvislosti v území a dotváří tak v současné době rozbitý blok budov na nábřeží s dominantní hmotou budovy sokola. Řešený objekt navazuje na zajímavé řešení vstupu sokolovny uskočením hmoty domu od uliční čáry. Jednak v úrovni parteru, čímž je vytvořen veřejný předprostor a také úskokem horních pater, jenž vytváří pobytovou zahradu pro obyvatele bytů. Vstupy do objektu jsou orientovány jednak do veřejného předprostoru, tak do nábřeží. Vjezd do autovýtahu pro podzemní garáže je orientován do ulice Malá Dlážka.

 

Navrhovaný objekt nemá za cíl vytvářet v lokalitě novou dominantu, avšak má pouze svou hmotou doplnit a vyvážit celkovou kompozici území.

 

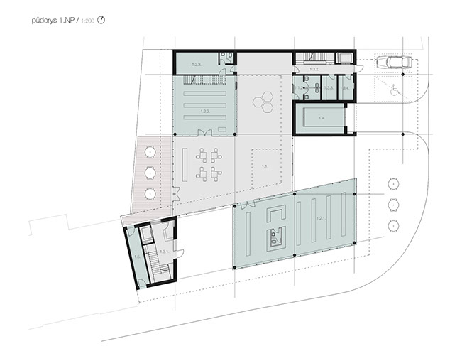
Čtyřpodlažní hmota polyfunkčního domu je definována dvěma odlišnými principy. První tvoří 1. a 2.NP zástavbou do nároží podél uliční čáry. Druhý naopak prolamuje hmotu a odsouvá 3. a 4. podlaží k zadní hranici parcely. Tato kombinace protichůdných forem vytváří zajímavé prostorové podmínky pro rozdílné funkce obsažené v domě. V 1.NP nalezneme převýšenou vnitřní pasáž s částečným vrchním osvětlením. Na tento prostor úzce navazují obchody v přízemí a v 2.NP kanceláře. Uskočení horních bytových podlaží vytváří nad kancelářským patrem vnější terasu s vegetační střechou. Ta má dvojí využití. Jednak akumuluje teplo a dodává příjemnější klima kancelářím a také slouží obyvatelům bytů jako společná zahrada. Tento prvek tak propojuje obyvatele domu, čímž má za cíl vytvořit nejen prostor pro bydlení, ale i dobré podmínky pro vznik sousedské komunity. V dvou horních patrech domu jsou umístěny převážně malometrážní byty. Ty jsou provozně napojeny na vnější pavlač. Toto uspořádání dovoluje jistou míru variability dispozic pomocí slučování jednotlivých buněk vždy po ½ modulové osnovy domu.

 

 

MĚSTSKÝ DŮM NA NÁBŘEŽÍ V PŘEROVĚ SOUKROMÝ INVESTOR, BAKALÁŘSKÁ PRÁCE 2010
INFO

© STEHLÍK ARCHITEKTI 1993-2021, ALL RIGHTS RESERVED