stehlík architekti novinky o nás realizace projekty ocenění kontakt rodinné domy

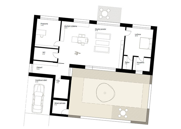
Dům umístěný na okraji louky s nádherným výhledem na městečko Rosice u Brna kombinuje luxusní městské bydlení s dravou přírodou. Louku ponecháváme bez zásahu a vtahujeme ji do nitra domu prostřednictvím velkého atria. To nám dává možnost definovat intimní část pozemku jako pobytovou zahradu. Propojení interieru a exterieru má navodit harmonický pocit soužití s přírodou.

RD ROSICE STUDIE 2011
INFO

© STEHLÍK ARCHITEKTI 1993-2021, ALL RIGHTS RESERVED