stehlík architekti novinky o nás realizace projekty ocenění kontakt rodinné domy

Původní dům od slovenských architektů Weiwurm Vescei je z r 1937, má ryze funkcionalistický charakter, snahou autorů nástavby bylo na tento koncept navázat.Hmotové řešení vychází z urbanistické situace nároží.. Nástavba sestává ze dvou základních hranolů, z nichž nižší je v podstatě zdvojením stávající římsy, zatímco horní plechový je potom pokračováním zástavby protější strany Antonínské, záměrně ustupující do druhého plánu.

 

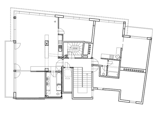
Půdní nástavba je navržena ve dvou podlažích. Dispoziční řešení umožnilo navrhnout tři byty,

 

Stávající konstrukce krovu byla odstraněna, nosný systém nové nástavby je rámová konstrukce v kombinaci ocel, dřevo. Obvodový plášť je z Al plechu.

 

 

NÁSTAVBA ANTONÍNSKÁ SOUKROMÝ INVESTOR 2004 AUTOŘI: PROF. ING. ARCH. MILAN STEHLÍK, ING. ARCH. ALENA STEHLÍKOVÁ
INFO

© STEHLÍK ARCHITEKTI 1993-2021, ALL RIGHTS RESERVED