stehlík architekti novinky o nás realizace projekty ocenění kontakt rodinné domy

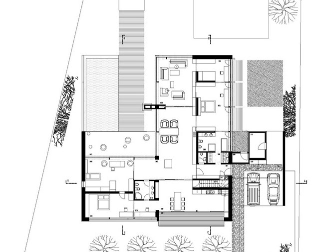
Dům je koncipován jako venkovská stavba, která je umístěna v otevřené krajině. Součástí je i obrovská zahrada dodávající místu na jedinečnosti. Vzhledem k poloze bylo použitím kamene a bílých omítek dosaženo jižanské atmosféry.

RD VALTICE SOUKROMÝ INVESTOR 2009 AUTOŘI: PROF. ING. ARCH. MILAN STEHLÍK, ING. ARCH. ALENA STEHLÍKOVÁ
INFO

© STEHLÍK ARCHITEKTI 1993-2021, ALL RIGHTS RESERVED